|
 |
|
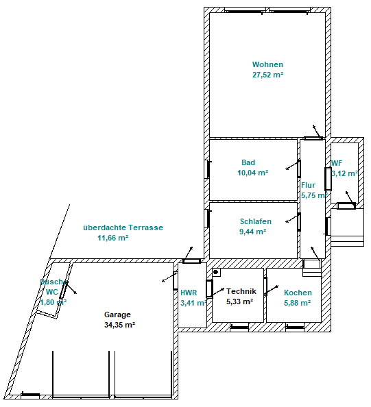
Erdgeschoss |
|
Wohnen: |
ca.
27,52 m² |
|
Bad: |
ca. 10,04 m² |
|
Schlafen: |
ca. 9,44 m² |
|
Flur |
ca.
5,75 m² |
|
Windfang |
ca.
3,12 m² |
|
Kochen: |
ca.
5,88 m² |
|
HWR: |
ca.
3,41 m² |
|
Dusche/WC: |
ca. 1,80 m² |
|
überd.
Terrasse (50%) |
ca. 5,83 m² |
|
Gesamtfläche: |
ca.
72,79 m² |
|
|
|
|
überd. Terrasse (50%) |
ca.
5,83 m² |
|
Technik |
ca.
5,33 m² |
|
Garage |
ca.
34,35 m² |
|
Nebenfläche: |
ca.
45,51 m² |
|
Alle Angaben ohne
Gewähr!
|